| Bildergalerie und Themengebiete |
Modifikation des Ablassschiebers
|
Sicherheitsschloss für Flair
|
Der verflixte Pluspol beim Ducato
|
Badezimmerschrank
|
Schadensbilder vom Triebkopfabriss bei
|
Der neue Innenraum vom Flair
|
Beschreibung einer Garagensanierung
|
Hier sind die Bilder von Auffahrkeilehalterung
Die keile in hochgeklappter Halterung
Halterung mit den Keilen abgeklappt
hochklappen zum Verriegeln, man sieht den Verriegelungshebel
normale Ansicht
schräg von unten gesehen |
Hier sind die Bilder von Autoradio im Wohnraum und Einstiegsstufe
Bild 1
Bild 2
Bild 3
Bild 4 |
Hier sind die Bilder von der Winterisolierung zum Fahrerhaus
Bild 1
Bild 2
Bild 3
Bild 4
Bild 5
Bild 6
Die Winterwand besteht aus 2 Festteilen,
2 beweglichen und einer 2 tlg. einfachen Hängeschrankschiene
mit Kunststoffgleitern, die genau in die Mulde
des Kunststoffformteiles zum Fahrerhaus passt.
Die Wände sind aus Pappelleisten sowie aus 4mm Sperholzplatten
mit Teppich verklebt und bilden eine Elementdicke von 28 mm.
Sieht auch der Durchgang sehr eng aus, ist es eigentlich eine
Täuschung, da dieser auch nicht schmaler als ist als die Sitze auseinanderstehen.
|
|
|
Hier ist das Bild des modifizierten Tankdeckels |
Monsterschublade 1
Monsterschublade 2 |
Hier sind die Abbildungen von Modifiktionen
Anbringung
Haube entfernt
Rolladen |
Hier sind die Radkappen
Radkappe Detailansicht
Radkappe Detailansichtt
Radkappen am Flair |
|
Reparaturanleitung zum Abdichten des Ringankers
|
Heckleiter
Heckleiteransicht Bild 1
Heckleiteransicht Bild 2
Heckleiteransicht Bild 3 |
|
Schubladeneinbau in Flair 7100 |
|
Eingangstürbeleuchtung beim Flair |
Gescannte Betriebsanleitung von Albert (ca. 6,6 MB)
Alde-Zubehörkatalog Compact 3000 (ca. 1,5 MB)
Serviceanleitung 1 in englisch (ca. 4,1 MB)
Serviceanleitung 2 in englisch (ca. 1,3 MB)
Installationsanweisung Alde Compact 3000
Installationsanweisung Alde Compact 3000 Neue Bilder |
Schuhregal
Sternenhimmel
Umbau des Waschbeckens |
Batteriekastenerweiterung
Neuer Stauraum |
Batteriekasten 1
Batteriekasten 2
Batteriekasten 3
Batteriekasten 4
Batteriekasten 5
Batteriekasten 6
Batteriekasten 7
Batteriekasten 8
Batteriekasten 9
Batteriekasten 10
Batteriekasten 11 |
Batteriecomputer 1
Batteriecomputer 2
Batteriecomputer 3 |
|
Halter für Keile |
Ladegeräte und WR 2
Flesch Ladegeräte und WR 3 |
Flachschirm TV 1
Flachschirm TV 2
Flesch Flachschirm TV 3
Flachschirm TV 4
Flachschirm TV 5
Flachschirm TV 6
Flachschirm TV 7
Flachschirm TV 8
Flachschirm TV 9
Flachschirm TV 10
|
| Abschmieren der Drehstabfederachse |
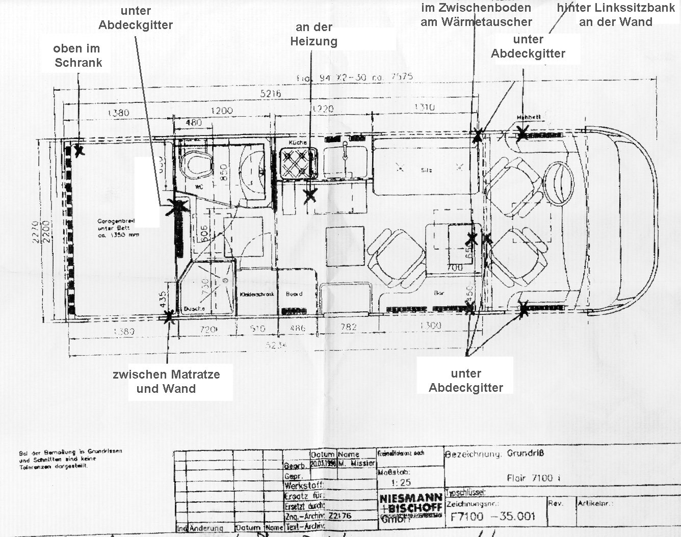
Entlüftungen der Heizung von der Flair 7100
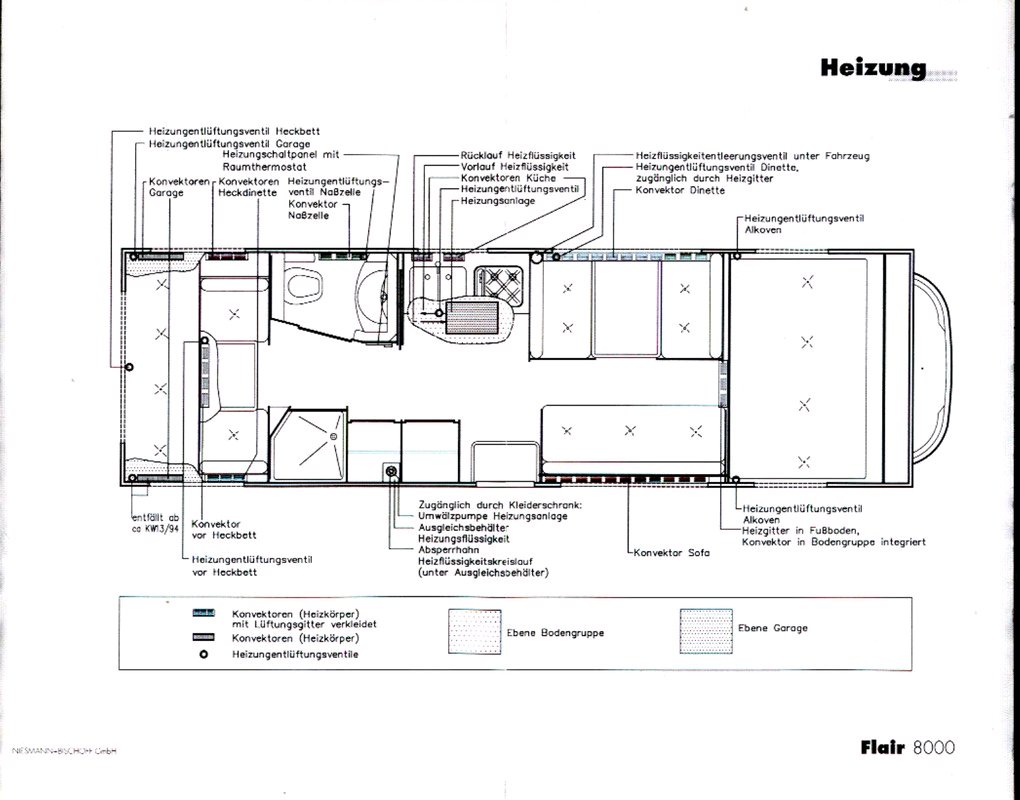
Entlüftungen der Heizung von der Flair 8000 Alkoven |
U-Bescheinungen 1
U-Bescheinungen 2 |
|
Gebrauchsanweisung von N+B für das Panel, die Relaisbox und Ladegerät |
|
L-Sitzgruppe |
Alberts gesammelte Daten
Daten 1
Daten 2
Daten 3
Daten 4
Daten 5
Daten 6
Daten 7
Daten 8 |
|
Zusatzheizung
Abriss Report |
|
Wassereintritt |
Fiat-Schadstoffklassen.pdf
|
|
Bodenerneuerung von der Garage |
Roller 1
Roller 2
Roller 3 |
Triebkopfabriss1
Triebkopfabriss2
Triebkopfabriss3
Triebkopfabriss4
Triebkopfabriss5
Triebkopfabriss6
Triebkopfabriss7
Triebkopfabriss8
Triebkopfabriss9
Triebkopfabriss10
Triebkopfabriss11
|
Pilotsitz 1
Pilotsitz 3 |
|
Drehstäbe wechseln |
|
Hinterrad Achsreparatur |
|
Beschreibung vom Umbau der Gasanlage |
|
Schadstoffklasse zu welcher Schlüsselnummer |
|
Wegfahrsperre |
|
Hydraulische Scheinwerferhöhenverstellung |
|
SAT-Anlage auf Wohnmobil |
|
Hilfe zum Spiegelglasausbau1
Hilfe zum Spiegelglasausbau2 |
|
Hilfe zur Zahnriemen Anleitung
|
|
Gutachten Zusatzluftfederung
|
|
Alde undicht
|
|
Checkliste für gebrauchte Wohnmobile.pdf |
|
Umrüstung auf LED Beleuchtung |
|
Entlüftungsventile Lage.JPG
|
Gebrauchsanweisung von N+B für das Panel C2005/M2005-2, die Relaisbox und Ladegerät
Alarme
Anschluesse
Batterieladegeraet
Einstellung
Hauptelemente
Kontrollpanel C2005
Verteilungsmodul
|
Alde 3010 service manual (englisch)
Gebrauchsanleitung Compact 3010 (deutsch) |
| Wechsel vom Chassis
|
|
Thema: Batterie ist leer |
|
Thema: den unmöglichen Zugang zum Wärmetauscher |